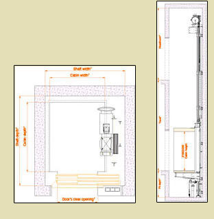
The Traction MRL Solution:
ATLAS is the perfect solution for up to 1000 kg Traction Machine Room-Less Lifts. It uses the gearless machine ZETATOP, manufactured by one of the most experienced companies in the field, ZIEHL - ABEGG, Germany . The design for cantilever style lift and for suspension 1:1 combines ease of installation comparable only with hydraulic lifts, and comfort and low noise levels of gearless machines.
The maximum speed of the system reaches 1,6 m/sec, meeting the requirements of high-rise buildings with heavy traffic.
The Advantages of Mistral:
- Type Examination Certificate according to Directive 95/16 EC
- Special design for easy installation of the drive
- Pre-assembled, electrical installation (pre- wiring)
- Cantilever sling allowing flexible entrance choices
- Speed up to 1.6m/sec
- Load up to 1000kg
|